和美|成屋

★頂真詠心★-成屋

▲3D外觀透視參考圖

影片介紹

頂真詠心地基環境一覽

|芳修觀點

此建案推出時候芳修應該還沒當仲介,不過成屋我倒是有進去看過幾間,
簡單來說頂真的地點是一個成熟的小型商圈,
從幼稚園到國小畢業原則上媽媽騎腳踏車就能送小孩上學了(五分鐘內),
外觀也是挺好看的,樓層大多一層六戶兩梯,高樓層有四戶兩梯,
我很喜歡他的A2,B2兩房格局,因為陽台超大,
話說他的三房個人認為有點像2+1,不過整體評分,
我覺得離彰化市五分鐘就很吸引人了~
當初一開賣好像價格也是挺嚇人的,現在一回頭,親民的價格~~(哪來這麼多早知道)
統整一下:
1.位處一高烏日王田交流道.二高和美交流道
2.臨近運動公園及停車場
3.臨近糖友商圈.家樂福燦坤商圈,繁華與寧靜共存
4.單純71戶,戶戶方正隔局,四周皆是低層建築,視野無限
5.零店面.純住家.戶戶平面車位,多戶有露台
6.正面基地退縮15米,其餘退縮6~11米,建蔽率僅30%,綠覆率達70%
7.社區公設擁有挑高4.2米迎賓大廳.貴賓休憩區.多功能會議室.美律健身房

|基地環境介紹

基地空拍圖

(一)110.07拍攝

東面拍攝
東北角拍攝
西側拍攝
東南角拍攝
西南角拍攝
西北角拍攝
周邊配套
  • 學 區:新庄國小、陽明國中、彰安國中、彰化高中及女中、彰化師範大學
  • 超商賣場:全聯福利中心、全家、7-11
  • 傳統市場:華陽公有零售市場
  • 熱門商圈:家樂福商圈
  • 醫療機構:衛生福利部彰化醫院、彰化基督教醫院
  • 政府機構:中寮郵局
▲頂真詠心周邊環境-空拍一覽圖

商圈林立 城心生活 兩大公園 休閒綠活

「頂真詠心」近彰化市金馬路家樂福商圈,5分鐘生活圈,連鎖商場店家林立,滿足日常所需。近擁糖友、家樂福燦坤商圈,知名連鎖商場店家林立,生活樣樣俱備,滿足日常所需,糖友里兩大公園,麗池公園與運動公園,乘著微風踩踏單車,散步漫遊,俯拾間皆是歡樂與風景,鄰近學區溫馨接送,休閒書香人文齊聚,擁抱親情溫馨。享有安全、休閒與便利的居住環境,繁華與寧靜共存。

▲ 頂真詠心周邊環境-平面位置圖
▲和群國中
▲麗池公園
▲糖友里運動公園
▲和美糖友商圈
▲全聯福利中心-和美糖友店
▲ 金馬路街景
家樂福商

※※※基地地址:彰化縣和美鎮糖友里友東路1號※※※

交通出行

繁華都心 捷運串聯便捷交通

一高、二高環抱,10分鐘直上交流道快速連接全台,串聯高鐵、台鐵、中彰快速道路四通八達,快速通達南北。台中捷運綠線預計規劃將延伸至彰化金馬路,串連彰化鹿港輕軌捷運,升級未來繁榮生活圈。

▲ 頂真詠心周邊環境及交通參考圖
  • 高速公路:國道1號彰化交流道、國道3號和美交流道
  • 快速道路:74快速道路
  • 台鐵系統:彰化火車站
▲ 彰化車站前站

建築規劃及概況

建築規劃
  • 公   設  比:32.5%
  • 棟戶規劃:1棟,71戶住家
  • 建   蔽  率:29%
  • 樓層規劃:地上13層,地下2層
  • 車位規劃:平面式76個
  • 管理費用:50元/坪/月
  • 車位配比:1:1.07
  • 結構工程:RC
  • 基地面積:543坪
  • 用途規劃:住家用
  • 交屋屋況:標準配備
  • 土地分區:鄉村區乙種建築用地
  • 物業公司:暫無
  • 管   委  會:暫無
  • 建造執照:(104)府建管(建)字第0242353號等1個
  • 建築設計:羅貞旻建築師事務所
  • 使用執照:(107)府建管(使)字第0121300號
  • 景觀設計:瀚埕設計工程有限公司
  • 公設設計:閤里居空間設計有限公司
  • 燈光設計:映築設計有限公司
  • 座向規劃:朝南
  • 建材說明:櫻花廚具設備、德瑞克衛浴設備、馬可貝里拋光地磚、羅賓系列超耐磨木地板、防火時效60A鑄鋁鋼板門、維夫拉克感應大門門鎖、氣密鋁門窗
  • 公共設施:接待大廳、中庭花園、空中花園、交誼廳、閱覽室、健身房、廚藝.教室、信箱區、曬被區、Lounge Bar、迎賓水池

(一)公共設施展示及特色介紹

休閒景觀美宅

「頂真詠心」單純71戶,零店面、純住家、戶戶平面車位、多戶有居家休閒露台,基地退縮6~15米,高綠覆,稀有低建蔽,提升居家生活品質。以用心、健康、舒適、環保的建築規劃思維,滿足您的需求,疼愛家人。

▲3D外觀透視參考圖
▲建築外觀實景圖

空中環景大視野 浪漫中庭 大樹環抱

中庭多層次規劃,頂樓雲閣賞景區、星月觀景平台與四季玻璃屋,空中環景大視野,心曠神怡。1F挑高迎賓Lobby、多功能交誼廳、健身房等,多項貼心公設,增添精彩生活。中庭多層次休憩平台規劃,花草、大樹做主角,驚豔四季美麗景象。陽光在枝縫間流洩,光影緲緲,靜觀樹影隨風婆娑起舞,享受悠閒一抹綠意,健康樂活。

▲ 中庭花園
▲ 中庭花園
▲ 星月觀景平台
▲ 秘密基地平台
▲ 綠沐花園廣場
▲ 機車停車區
▲ 水景迎賓道
▲ 公設迎賓lobby
▲ 信箱區
▲ 多功能交誼廳
▲ 多功能交誼廳
▲ 仰森健身房

() 建築參與者

  • 建築設計:羅貞旻建築師事務所
  • 景觀設計:瀚埕設計工程有限公司-楊濰埕
  • 公設設計:閤里居空間設計有限公司-洪仲誼

集合住宅景觀-瀚埕設計工程

前庭設計理念隨著文明的進步與生活的進化,農村生活逐漸轉變為熱鬧市鎮,但內心對鄉土的情感依舊有著深深的依戀。 進化的生活和文明與自然和諧共生共存,頂真詠心集合住宅大樓的規劃初心,便是以「讓利共好」為理念,退縮建築,讓基地前庭與道路成為鄰里的生活街區,不僅成為頂真詠心社區的出入口,更是歡迎鄰里駐足停留,共享美好的「門口埕」。

▲ 社區出入口

在大門入口的左側栽植紅雞油,象徵著「起家」、「油洗洗」的理念。

▲大門入口的左側

沿街高挺的光臘樹迎接南向的驕陽,透過樹梢細緻輕巧的羽狀複葉,爬梳熾烈的紫外線轉為溫煦的陽光,偶然駐足的蟲鳴鳥叫伴隨著南風輕拂,演奏出和諧的奏鳴曲,與矗立的臻心住宅大樓相伴,建立前庭的空間序列。

門前的水池不僅舒緩南向前庭的熾熱,更是風生水起的聚財象徵,與水池相伴的是緬梔,或稱鹿角樹,代表著加冠晉祿的祝福意念。

▲門前的水池

車道入口處種植羅漢松,常綠耐風、堅毅不拔的形象彷彿社區的守護神,全年無休的屹立於此,不變的守候著社區居民出入平安吉祥。 街角種植一棵「宜梧」,樹型優雅古樸,是過去鄉野常見的耐風耐旱樹種,也是濱海地區的綠色夥伴,除了像銀兩般亮綠的葉色,其成熟的果實酸中帶甜、生津止渴,也是白頭翁與綠繡眼的喜愛的食物之一,作為村樹有和諧共享與懷舊的不同層次情感的表現,更是有著「承先啟後,繼往開來」的意義。

(三)建築工程進度

建築工程進度 (圖取自Google)

(二) 模型屋展示

建案概況
  • 單        價:16~19萬元/坪(當時建商預售價格不含車位)
  • 車位價格:85~100萬
  • 貸款成數:80%
  • 公開銷售:已完銷
  • 交屋時間:隨時交屋
  • 交屋屋況:標準配備
  • 格局規劃:二房(24~28坪) 、三房(34~40坪)
  • 建案類別:新成屋
  • 建物形態:住宅大樓 住家用
  • 基地地址:彰化縣和美鎮糖友里友東路1號 
  • 接待會館:彰化縣彰化市和美鎮糖友里友東路1號
  • 投資建設:頂真建設有限公司
  • 營造公司:容拓營造股份有限公司
  • 企劃銷售:福諾廣告有限公司
  • 建案特色:景觀宅、近公園

|全區平面配置圖

(一) 樓層平面參考圖

▲ 屋突1層
▲ 壹層平面示意圖
▲ 貳層平面示意圖
▲ 參層~拾壹層平面示意圖
▲拾貳層平面示意圖
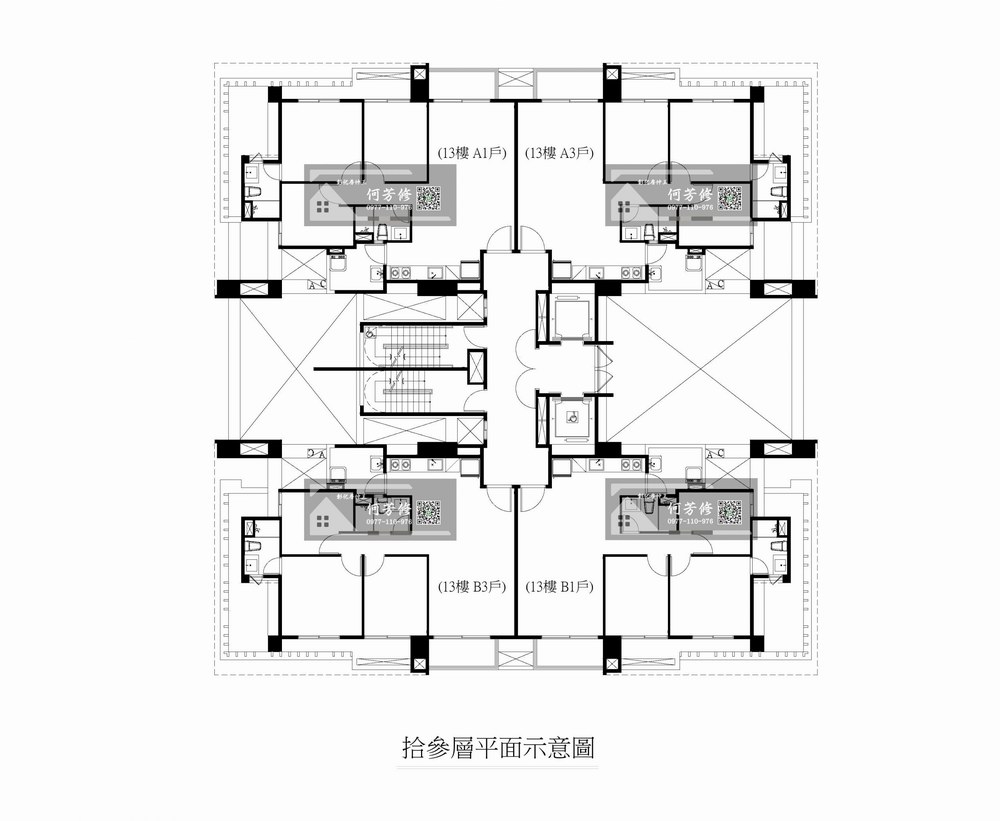
▲拾參層平面示意圖

(二) 各戶平面配置參考圖

▲ A1戶 傢俱配置平面示意圖 (3-11F)
▲ A2戶 傢俱配置平面示意圖 (3-11F)
▲ B1戶 傢俱配置平面示意圖 (3-11F)

樣品屋及實屋規劃參考

(一) 樣品屋

▲ 客餐廳及廚房樣品屋實景 (圖取自Google)
▲ 客廳/餐廳
▲ 主臥室
▲ 次臥房
▲ 小孩房
▲ 乾濕分離浴廁

(二) 實體屋

(三) 公設實拍

▲ 健身房
▲ 交誼廳

建材標準配備

|特色介紹簡介

|其他建案參考:

頂真建設.榮拓建築-歷年品牌一覽

媒體報導

▲媒體報導取自「蘋果即時」

------------------------------------

我是網站主持人何芳修。        0977-110-976
不論您想買房、賣房,我都會用盡全力的努力來為您服務。同時提供最完整,最透明的資訊給您參考。
希望您能給我一個服務的機會,謝謝您!

發佈留言

error: 你想幹嘛?!別亂來! 想看詳細資料,請洽 【彰化房仲王何芳修】電話:0977-110-976